Nicole Brandstätter
Kundenberatung - Bestand
Tel.: +43 2622 39145 3019
Fax: +43 2622 39145 3020
n.brandstaetter@staging.wiensued.at
Derzeit sind in dieser Anlage keine Reihenhäuser verfügbar! Wenn Sie Interesse an einem frei werdenden Reihenhaus bei unserem Bestandsobjekt in der Hainischstraße 22-60, in 2640 Gloggnitz, haben, können Sie sich gerne dafür vormerken.
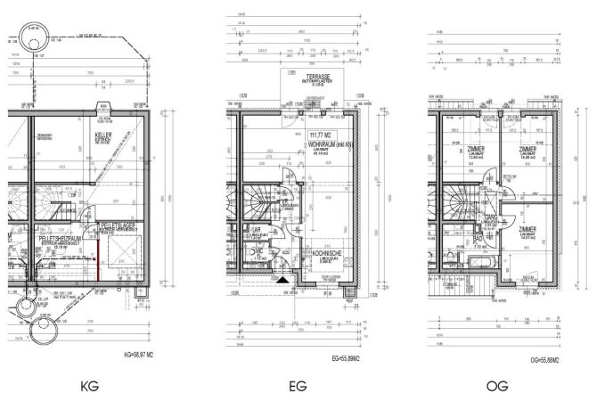
Das Reihenhausprojekt der Gewog „Arthur Krupp“ Ges.m.b.H. im schönen Schwarzatal wurde in zwei Bauabschnitten errichtet und umfasst insgesamt 20 Hauseinheiten.
Die Häuser sind zweistöckig konzipiert und verfügen über ca. 112 m² Wohnfläche. Dazu kommen noch schöne Terrassen und Gärten, die jedem Haus zugeordnet sind. Für wohlige Wärme sorgt eine Pellets-Heizungsanlage, untergebracht im Keller jedes Hauses, die zudem umweltfreundlich ist. Die Warmwasserversorgung wird zusätzlich durch zentrale Solarkollektoren unterstützt – das spart Kosten und hilft die Umwelt zu schonen. Das angenehme Raumklima wird durch die Ziegelbauweise und durch eine kontrollierte Wohnraumlüftung sichergestellt.
Im Nahbereich der Reihenhausanlage gibt es nicht nur die Möglichkeit, die Einkäufe zu tätigen – auch Kindergärten und Schulen befinden sich im nahen Umfeld.
Es besteht eine Kaufoption gemäß § 15c WGG. Wenn Sie Fragen dazu haben, kontaktieren Sie uns bitte, wir beraten Sie gerne!
RH 24 – Garten mit Terrasse